Карамель 142
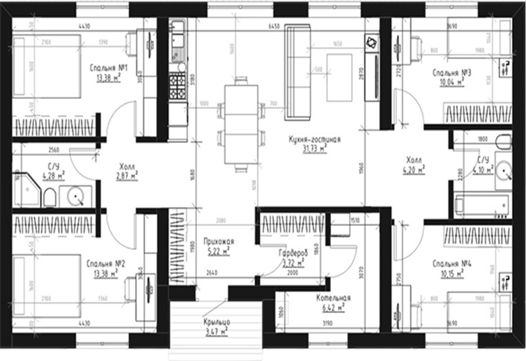
- 142 м²
- 4 спальни
- 2 санузла
от 9 639 340 ₽
3D планировка
2D планировка
- 142 м²
- 8.8 х16 м
Планировки с размерами, PDF
Выбирайте цветовое решение фасада — классическое светлое и современное тёмное. Оба варианта создают стильный и гармоничный образ дома.
Больше проектов до 100м2
Технические характеристики
Цена от
9 639 340 ₽
Линейные размеры
8.8 х16 м
Общая площадь
142 м²
Полезная площадь
106 м²
Фасад
Стеклофибробетон с УФ печатью
Окна и двери (Распашные или раздвижные в зависимости от комплектации)
Пластиковые профиль 70 мм, двойной стеклопакет
Навес (Опционально)
Маркиза
Кровля
Металлочерепица цвет графит
Терраса
Возможна пристройка террасы. См. конфигуратор
Высота потолков
Переменная 2,7 м - 3,87 м м
Спален
4
Санузлов
2
Инженерные системы
Ваш будущий дом может быть оборудован всеми необходимыми инженерными системами
в соответствии с вашими пожеланиями и требованиями. Мы предлагаем
комплексные решения по монтажу и подключению:
Отопление
Эффективные системы обогрева (газовые или электрические котлы, теплые полы и радиаторы) для комфортного проживания в любое время года
Водоснабжение
Разведение труб холодного и горячего водоснабжения до оконечных устройств
Вентиляция
Система воздухообмена для поддержания здорового микроклимата
Электричество
Безопасная и мощная электросеть с учетом всех потребностей
Все коммуникации проектируются и устанавливаются с учетом современных стандартов, обеспечивая
долговечность и энергоэффективность вашего дома.
Не забудьте включить инженерные системы в комплектацию Вашего будущего дома
в конфигураторе
Характеристики инженерных систем вашего будущего дома в формате PDF.


